Enquire Now
Book a Viewing

3A St. James Gate, Newcastle Upon Tyne, Tyne And Wear, NE1 4AD

Office
5,153 Sq Ft (478.71 Sq M)
For Sale
£599,000 Long Leasehold

Creative City Centre offices

Highly visible location

Prime office ideally located 5 minute walk from Central Station

First-rate working environment

Beautiful landscaped courtyard plaza

Suitable for alternative uses, subject to planning

Jessica Ross

Interested in this property?
Please contact me

jessica@naylorsgavinblack.co.uk 0191 211 1544

Chris Pearson

Interested in this property?
Please contact me

chrisp@naylorsgavinblack.co.uk 0191 211 1555
1/5

Location

Offering one of the most accessible locations in Newcastle City Centre.

No 3 St James Gate forms part of a stunning landmark development within a 5 minute walk of Newcastle Central Station. It is situated at the western entrance to Newcastle City Centre in close proximity to St James' Boulevard & the Redheugh Bridge providing easy access to A1 North and South.

The perfect position to take advantage of a vibrant mix of restaurants, cafés and shops on the doorstep of a developing quarter of the city.

Newcastle is one of the fastest growing tech clusters in the UK and has been named a 'tech hub to watch' in 2021 by the business network Tech Nation. The region is home to FTSE 100 company Sage PLC, Ubisoft's largest UK Games Studio and a new BBC Tech Hub.

The city also has the highest proportion of STEM and computing students in the country, and the UK's National Innovation Centre for Data. Overall, the city's two universities produce 101,000 talented graduates each year, 36% of which stay in the city to live and work - one of the highest graduate retention rates in the country.

St James Gate lies at the gateway between Central Station and the Forth Goods Yard and Quayside West Development Area which extends to the south and west. This area is set to deliver a significant number of new homes, offices, leisure and public open space.

St James Gate will therefore be at the heart of an increasingly important business, leisure and residential district of Newcastle City Centre.

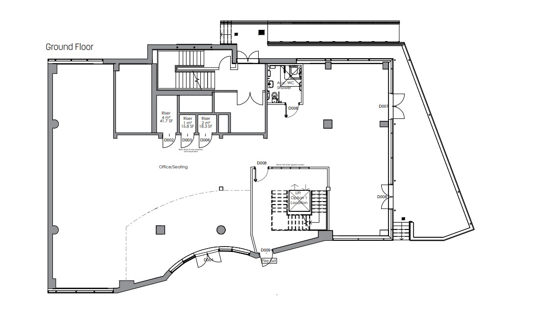
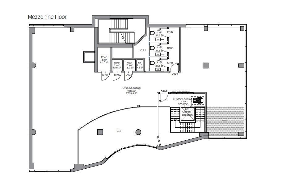
Description

No. 3A St James Gate offers Grade A, creative office space with its own front doors. Approached through a beautifully landscaped archway and with access to a courtyard plaza with easy drop off and pick up bays.

The office has been fully refurbished to a Gade A specification, with LED lighting and exposed services, giving the office a fresh and contemporary feel with excellent ceiling heights. The reception entrance is double height, with office accommodation split over ground and mezzanine level. The dual-aspect curtain wall glazing allows for excellent natural light.

The property has been refurbished to ensure it provides a sustainable working environment and has achieved an EPC B rating.

Link to St James Gate website: www.stjamesgate.co.uk

Terms

The property is available by way of a 999 year long leasehold purchase.